True

PROYECTO BBVA  (Mantenimiento)

Realizamos el mantenimiento integral de 38 davits en las instalaciones del BBVA, garantizando su óptimo funcionamiento y prolongando su vida útil. El servicio incluyó pintura anticorrosiva, engrase especializado y la verificación completa de sus sistemas de izaje y rotación.

Además, ejecutamos la instalación y mantenimiento de anclajes tipo Yoke, tipo D y Pedestal, diseñados para asegurar líneas de vida y puntos de anclaje certificados para trabajos en altura. Cada componente fue inspeccionado y certificado de acuerdo a los estándares de seguridad exigidos por el cliente y la normativa vigente. (25/10/2025)

 

 

 

 

 

 

 

 

 

 

 

 

PROYECTO UTP NORTE (Escuadras metálicas)

En el proyecto UTP Norte, realizamos la instalación integral de 25 escuadras metálicas destinadas a diferentes áreas operativas dentro de la obra. Se implementaron escuadras de 2.5 toneladas para la zona de acopio de materiales y banco de acero, garantizando soporte estructural seguro para cargas pesadas.

Asimismo, se instalaron escuadras de 1.5 toneladas especialmente diseñadas para la habilitación de comedores y vestuarios, asegurando infraestructura estable y adecuada para el uso diario del personal.

Cada escuadra fue equipada con sus respectivas barandas de protección, cumpliendo con los estándares de seguridad industrial y asegurando condiciones seguras para todos los trabajadores durante las operaciones en altura y en zonas de tránsito. (5/11/2025)

 

 

 

 

 

 

 

 

 

 

 

 

PROYECTO INTI PUNKU  (Andamios colgantes)

Para el Consorcio INTI PUNKU, se realizó el alquiler de 10 andamios colgantes eléctricos, en longitudes de 2 a 8 metros, adaptándose a las exigencias de cada frente de trabajo y a las distintas alturas y posiciones requeridas en el proyecto.

Estos equipos fueron utilizados para los trabajos de tarrajeo y pintura y otros servicios  para el  Hotel Costa del Sol – Aeropuerto , además de otras labores que demandaban un acceso seguro y eficiente en zonas elevadas. (2/01/2025)

Clarico-Offer style 4
Fachada Costa del sol (lateral)
Clarico-Offer style 4
Fachada Costa del sol (frontal)
Clarico-Offer style 4
Vista desde arriba

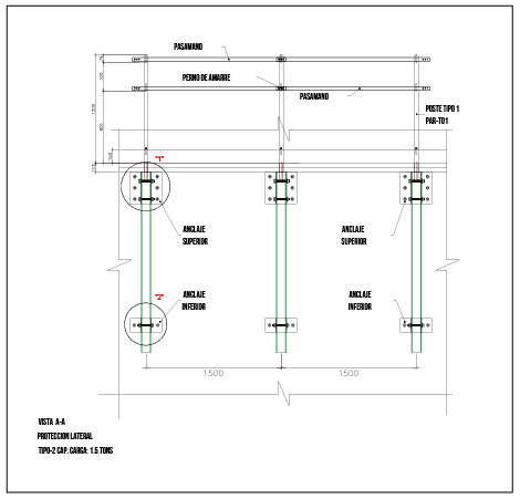
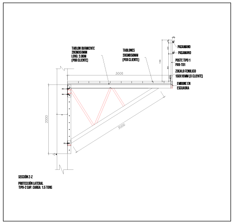
PROYECTO VANDERGHEN  (Escuadras metálicas)

Alquiler de escuadras 1.5 TN con barandas de seguridad

En el proyecto Vanderghen (San Isidro) brindamos una solución integral para la habilitación y acondicionamiento de oficinas, almacenes y áreas de duchas, mediante el alquiler de escuadras metálicas de 1.5 toneladas equipadas con barandas de protección.

Nuestro servicio permitió optimizar los tiempos de montaje y asegurar un entorno de trabajo seguro y ordenado, especialmente en zonas de tránsito interno y almacenamiento temporal.

Servicios implementados:

  • Alquiler de escuadras metálicas de 1.5 TN

  • Instalación de barandas perimetrales de protección

  • Soporte técnico y supervisión en obra

  • Soluciones adaptadas al uso en oficinas, almacenes y módulos de ducha

 

 

PROYECTO ICPNA LIMA NORTE  (Instalación de Mallas anticaídas)

Implementación de un sistema de mallas anticaídas tipo bandeja en la sede ICPNA Lima Norte, ubicada en el distrito de Independencia. Este sistema forma parte de las protecciones colectivas destinadas a garantizar la seguridad en zonas de trabajo en altura, específicamente en los pisos 3, 4 y 6 del edificio.

El servicio incluye:

  • Postes metálicos estructurales

  • Cables acerados de alta resistencia

  • Placas de anclaje metálicas

  • Pernos expansivos y pernos de grado estructural.

  • Elementos de sujeción como grapas o grilletes

Modulación y distribución
El diseño incluye una modulación en planta que define la ubicación de cada paño de malla, adaptándose a la geometría del edificio. Se realizó un cómputo de piezas para un anillo fijo que recorre los niveles intervenidos, optimizando la cobertura y continuidad del sistema.

 

 

 

 

 

 

 

 

Contáctanos

¿Listo para llevar tus ideas a la realidad? Contáctanos y descubre cómo transformamos tus proyectos en innovadoras soluciones constructivas.

Clarico-Offer Timer

To install this Web App in your iPhone/iPad press and then Add to Home Screen.